Jeux de Paris 2024 : village des athlètes, lot E, l’avenir en héritage
Le 28 novembre dernier, les 52 420 m² qui composent le lot E du futur village des athlètes pour les Jeux Olympiques de Paris 2024 ont été remportés par le groupement formé de :
- Maîtrise d’ouvrage : Nexity, Eiffage, CDC Habitat et Groupama,
- Coordination architecturale : CoBe et KOZ,
- Paysagiste : Atelier Georges
- Architectes : Barrault Pressacco, Dream, Lambert Lénack et SOA.

Avec un nom de projet « L’avenir en Héritage », comment l’équipe a t’elle répondu au défit du changement climatique par l’architecture ?

Défit du changement climatique par l’architecture
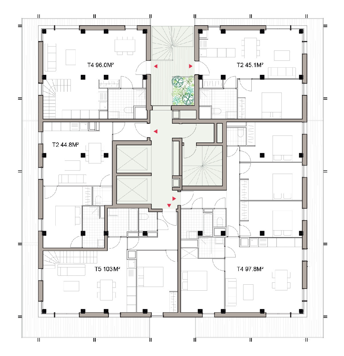
Entre le Boulevard Périphérique Nord et la Seine, le site est à Saint-Ouen (93), le site est à la charnière entre le futur Hub Pleyel et le tissu du Vieux Saint-Ouen. Le lot E incarne la partie habitée du village des athlètes, la plus domestique.

Le projet développé s’inscrit dans une démarche d’approfondissement du plan masse de l’architecte Dominique Perrault. Objectif : incarner les orientations urbaines, architecturales et paysagères en héritage. Créer un véritable quartier de Saint-Ouen, à la pointe du confort d’habiter, de l’accessibilité et de l’écologie.

Mission de coordination architecturale
Les agences d’architectures CoBe et KOZ ont été chargés de la coordination des sept lots architecturaux, en articulation avec le projet de paysage coordonné par Atelier Georges. Leur mission se répartit en trois axes :
- S’approprier le projet de Dominique Perrault et de l’agence TER, en qualifiant les « navires » (les deux macro-lots : le Belvédère et les Villas) et définir leur identité architecturale en travaillant sur un « air de famille » commun à l’ensemble des bâtiments, notamment à travers la matérialité et l’écriture architecturale.
- Définir et spatialiser la programmation en adéquation avec le territoire et les usages des habitants, actuels et futurs, afin d’affirmer l’ancrage territorial du futur quartier.
- Accompagner les architectes dans le respect des divers cahiers des charges, concilier les enjeux des phases JOP et Héritage et les enjeux liés à l’accessibilité universelle.

Programme du village des athlètes, lot E
- 525 logements : 37 888 m² SDP
- Bureaux : 13 054 m² SDP
- Commerces et services : 4 826 m² (dont crèche, restauration, artisanat, Fab lab, basket)
- Total : 55 768 m²
Économiser et réemployer la matière des bâtiments
Le réemploi, les doubles usages et la réversibilité sont au cœur de la conception des bâtiments. L’utilisation d’un système poteau poutre sur l’ensemble de l’opération permet une réversibilité totale. L’efficience de ce système est éprouvée dès la transformation du village éphémère des athlètes en un quartier résidentiel. Entre les deux phases un minimum de changement est engagé. Le quartier garde les traces du passage des athlètes grâce à une réflexion sur les usages communs aux différentes temporalités. Les éléments amenés à être démontés entre les deux phases seront réemployés : salle de bain préfabriquées, cloisons recyclables, ascenseurs réutilisables.

Stimuler les sens avec une structure bois
Le projet met en scène la matière : bois, pierre, enduit chaux, béton bas carbone. Ces matériaux de l’on peut sculpter, toucher, resteront des éléments visibles qui révéleront l’architecture. La structure bois présente dans la plupart des bâtiments est apparente et caractérise l’ambiance des logements et des bureaux. Grâce à cette structure apparente qui laisse la matière visible, les hauteurs sous plafond varient entre 2,50 m et 2,70 et offrent ainsi
des volumes généreux.

Façades qualifiées selon l’urbain et le climat
Chacune des façades est qualifiée en fonction de son environnement urbain et climatique. Généreuses, les façades s’ouvrent sur le grand paysage au nord-est et sud-ouest, tandis que les façades latérales construisent un rapport plus intime pour limiter les vis-à-vis.


Trame constructive et architecturale unique
Pour l‘ensemble des logements du lot E, la trame constructive est unique. Le module de base est de 280 cm par 560 cm avec une poutre intermédiaire à 140 cm. Ce parti pris d’une trame unique permet la généralisation d’un process de préfabrication à l’ensemble des bâtiments. Cette trame est facteur d’efficacité, de rapidité et de qualité sans déroger à la diversité architecturale. Chaque bâtiment déploie une architecture singulière qui reflète différente manière d’habiter, chacune adaptée au contexte des Villas et du Belvédère.

Immeuble phare du quartier
Au croisement de l’îlot Belvédère avec la Seine, l’immeuble phare s’oriente sur la diagonale entre la Seine et le Mail Finot et s’offre comme pivot entre ces deux fronts urbains. Il est conçu par les architectes Lambert Lénack. Les doubles hauteurs des balcons, les façades multiformes et les derniers étages vitrés donnent vie à une figure architecturale singulière qui combine domesticité et monumentalité, simplicité et expressivité…

Notion de frugalité en architecture
L’engagement du groupement d’architectes autour de la notion de frugalité a conduit à proposer un minimum de changement entre les phases Jeux et Héritage. Pour ce faire, il a fallu s’interroger sur la manière dont les deux cahiers des charges pourraient se nourrir.

Cette démarche a donné naissance à un ensemble de bâtiments qui favorise la cohabitation. Par exemple, dans le programme du lot E2-C ouvert sur la place Ampère, les services proposés aux futurs habitants restent identiques à ceux proposés aux athlètes (laverie, salle de sport). Ainsi, ce bâtiment sera livré dans son état définitif dès la phase Jeux.

Dans les autres cas, un questionnement a été mené pour que les traces visibles du passage des athlètes fassent ensuite la particularité des logements. De cette manière le bâtiment E1-B propose en phase « Jeux Olympiques de Paris » une salle de douche généreuse pour le confort des athlètes en plus de la salle de bain. Pour engager un minimum de changement, les revêtements muraux ainsi que le siphon de sol demeurent et caractérisent ainsi les espaces de cuisine.


Immeuble de bureaux avec équipement sportif sur le toit
L’immeuble de bureaux des architectes Dream de Dimitri Roussel met en scène la superposition de trois programmes : un restaurant, des espaces de travail avec loggias et une salle de basket. Avec une hauteur libre de plus de 10 m et une charpente en bois élancée, le dernier niveau offre une grande transparence créant un rapport poétique au ciel.

Le soir venu, l’équipement sportif sur le toit s’éclaire telle une lanterne et fait apparaître le spectacle des joueurs qui profitent de ce lieu ouvert à tous. Équipe d’un espace de convivialité avec le sport bar, ce roof top offre de superbes vues sur la Skyline parisienne et le quartier de Paris la Défense.

Vers une biodiversité locale et résiliente
Depuis les phases du village des athlètes jusqu’au quartier en Héritage, le projet des paysagistes de l’Atelier Georges s’engage dans une restauration écologique de la vallée de la Seine et s’incrit dans l’héritage agricole du vieux Saint Ouen, en mettant en oeuvre les trois biodiversités :
- Biodiversité des sols : reconstitués à partir du réemploi des déchets urbains, matières minérales (remblais, bétons concassés) et organique (compost), la fertilité de la terre dépoluées est réactivée, du sol aux toitures, pour offrir des conditions optimales pour le développement de la flore et de la faune locales.
- Biodiversité des milieux naturels : en rez-de-chaussée, les jardins frais, ombragés, parfois comestibles et cultivés, laissent progressivement place à mesure que l’on monte dans les étages, aux bosquets d’arbustes des terrasses puis aux prairies et pelouses des toitures, inspirées des paysages d’Ile-de-France, adaptées aux conditions climatiques plus chaudes et sèches.
- Biodiversité végétale et animale : le choix d’une filière « flore sauvage » et de production locale est un engagement en faveur de la sauvegarde de la diversité génétique des plantes qui favorise leur résistance, ainsi que de le vie animale associée, face au réchauffement climatique.

Accessible à tous, le quartier offre un parcours universel stimulant les sens. Plus de 25 % de vraie pleine terre à l’échelle du projet du Lot E. Le paysage francilien reconstitué est composé d’essences locales pour une biodiversité et des jardins comestibles inscrits dans le patrimoine francilien. Entre ombres et soleil, les plantes sélectionnées sont adaptées au climat de 2050 pour créer des îlots de fraîcheur (-2°C en période de canicule).
Approfondir le sujet
- Village olympique : éclairage urbain en prescriptions
- Trame noire augmentée et biodiversité du village olympique 2024
- Jeux olympiques 2024 : sites de compétition sous la lumière
- Torche de Paris 2024 : Tony Estanguet chez Mathieu Lehanneur
- Éclairons Paris 2024 : une invitation à l’événement sportif

Lieu
- Village olympique des athlètes
- Saint-Ouen-sur-Seine, France
Livres
Éclairage urbain et architectural du village olympique des athlètes
![]() |
Le village olympique pour les athlètes des Jeux de Paris 2024. Une approche exemplaire de réemploi en éclairage urbain par Concepto et le Studio 5.5. |
Lexique de l’éclairage professionnel, de Sophie Caclin
![]() |
La traduction facile français-anglais en architecture, urbanisme, lumière, éclairage et communication. Découvrez le Lexique de l’éclairage professionnel. |
London 2012, Sustainable Design, Delivering a Games Legacy
![]() |
L’ouvrage est un vaste regard sur la façon dont l'environnement a pénétré la pensée de tous les aspects des Jeux olympiques de Londres 2012. |





















